上海冠隆阀门机械有限公司生产的水封闸阀, DSZ61H水封闸阀结构特点及用途 1、本产品的阀盖填料室具有水密封结构,当接口通入压力O.6~1 MPa的水时,可使系统与大气隔离,保证系统具有良好的气密封。
一、结构特点及用途:
1、本产品的阀盖填料室具有水密封结构,当接口通入压力O.6~1 MPa的水时,可使系统与大气隔离,保证系统具有良好的气密封。
2、DS/Z型系列采用双闸板双向弹性密封,启闭灵活、迅速、密封可靠。
3、产品结构简单、紧凑合理、检修方便、使用寿命长。
4、在管路上作启闭装置用,必须处于全开或全闭状态,不得用于调节流量。
5、阀门连接方式有法兰和焊接两种,驱动方式为手动和电动。
6、DS系列水封阀门适用于公称压力≤1O.OMPa,工作温度≤425℃,工作介质为水、蒸汽、油品和非腐蚀性气体的管路上作启闭装置用,尤其适用于火电厂汽机真空冷凝系统。
二、主要性能规范:
|
试验压力 |
公称压力PN/MPa |
|||||
|
1.0 |
1.6 |
2.5 |
4.O |
6.4 |
1O.0 |
|
|
壳体强度试验 |
1.5 |
2.4 |
3.8 |
6.O |
9.6 |
15.0 |
|
密封试验 |
1.1 |
1.8 |
2.8 |
4.4 |
7.0 |
11.O |
|
上密封试验 |
1.1 |
1.8 |
2.8 |
4.4 |
7.0 |
11.0 |
|
气密封试验 |
0.5~O.7 |
|||||
三、使用范围:
|
产品类别 |
适用温度/℃ |
适用介质 |
|
碳钢型(C) |
≤425 |
水、蒸汽、油品、非腐蚀性气体 |
|
合金钢(I) |
≤540 |

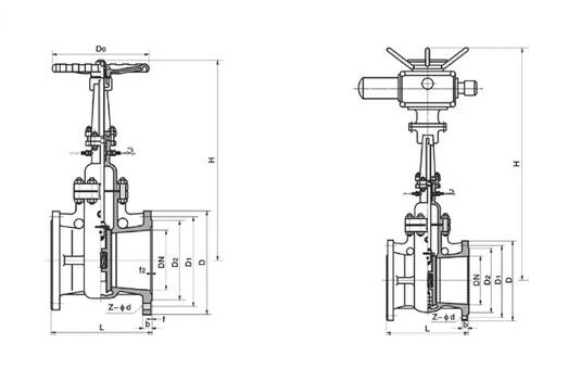
四、主要外形连接尺寸:
|
公称通径 |
L |
α |
H |
DO |
PNl.6/MPa |
PN2.5/MPa |
||
|
D |
D1 |
D |
D1 |
|||||
|
50 |
250 |
37°30' |
334 |
250 |
58 |
50 |
64 |
4g |
|
65 |
270 |
37°30' |
439 |
250 |
75 |
65 |
82 |
67 |
|
80 |
280 |
37°30' |
495 |
300 |
91 |
79 |
95 |
77 |
|
100 |
300 |
37°30' |
575 |
350 |
11O |
97 |
117 |
101 |
|
125 |
325 |
37°30' |
587 |
350 |
136 |
121 |
144 |
126 |
|
150 |
350 |
37°30' |
607 |
350 |
163 |
146 |
172 |
158 |
|
200 |
400 |
37°30' |
740 |
400 |
223 |
202 |
223 |
202 |
|
250 |
450 |
37°30' |
863 |
400 |
278 |
254 |
278 |
254 |
|
300 |
500 |
37°30' |
990 |
400 |
330 |
305 |
330 |
305 |
|
350 |
550 |
37°30' |
1137 |
500 |
382 |
352 |
382 |
352 |
|
400 |
600 |
37°30' |
1523 |
500 |
432 |
399 |
432 |
39g |
|
450 |
650 |
37°30' |
1618 |
600 |
485 |
451 |
485 |
451 |
|
500 |
700 |
37°30' |
1657 |
600 |
535 |
501 |
535 |
499 |
|
600 |
800 |
37°30' |
1746 |
700 |
636 |
601 |
636 |
599 |
注:PN1.6(16)阀门允许作为PN1.0(10)压力选用
|
公称通径 |
L |
D |
α |
PN4.O/MPa |
PN6.4/MPa |
PNlO.0/MPa |
||||||
|
D1 |
H |
D0 |
D1 |
H |
DO |
D1 |
H |
D0 |
||||
|
50 |
250 |
64 |
37°30' |
49 |
345 |
300 |
50 |
350 |
300 |
49 |
350 |
300 |
|
65 |
270 |
83 |
37°30' |
67 |
441 |
300 |
66 |
447 |
300 |
64 |
447 |
300 |
|
80 |
280 |
96 |
37°30' |
79 |
495 |
350 |
77 |
499 |
350 |
75 |
499 |
350 |
|
100 |
300 |
117 |
37°30' |
101 |
575 |
350 |
99 |
582 |
400 |
87 |
582 |
400 |
|
125 |
325 |
144 |
37°30' |
126 |
587 |
400 |
129 |
590 |
400 |
125 |
590 |
400 |
|
150 |
350 |
172 |
37°30' |
152 |
607 |
400 |
150 |
611 |
450 |
145 |
611 |
450 |
|
200 |
400 |
223 |
37°30' |
200 |
740 |
450 |
198 |
745 |
550 |
190 |
747 |
550 |
|
250 |
450 |
278 |
37°30' |
252 |
863 |
550 |
246 |
867 |
650 |
236 |
869 |
650 |
|
300 |
500 |
330 |
37°30' |
302 |
1008 |
650 |
294 |
1008 |
750 |
282 |
1013 |
750 |
|
350 |
550 |
382 |
37°30' |
350 |
1142 |
750 |
342 |
1148 |
800 |
334 |
1148 |
850 |
|
400 |
650 |
432 |
37°30' |
397 |
1527 |
850 |
387 |
1531 |
900 |
377 |
1533 |
950 |